项目位于北京市郊的怀柔慕田峪景区附近,业主希望将原有民宿拆除重建。宅基地西侧为公路,但距离宅基地尚有一定距离,南北两侧紧邻邻家住宅和其他民宿建筑,建筑东侧为山区的挡土墙。
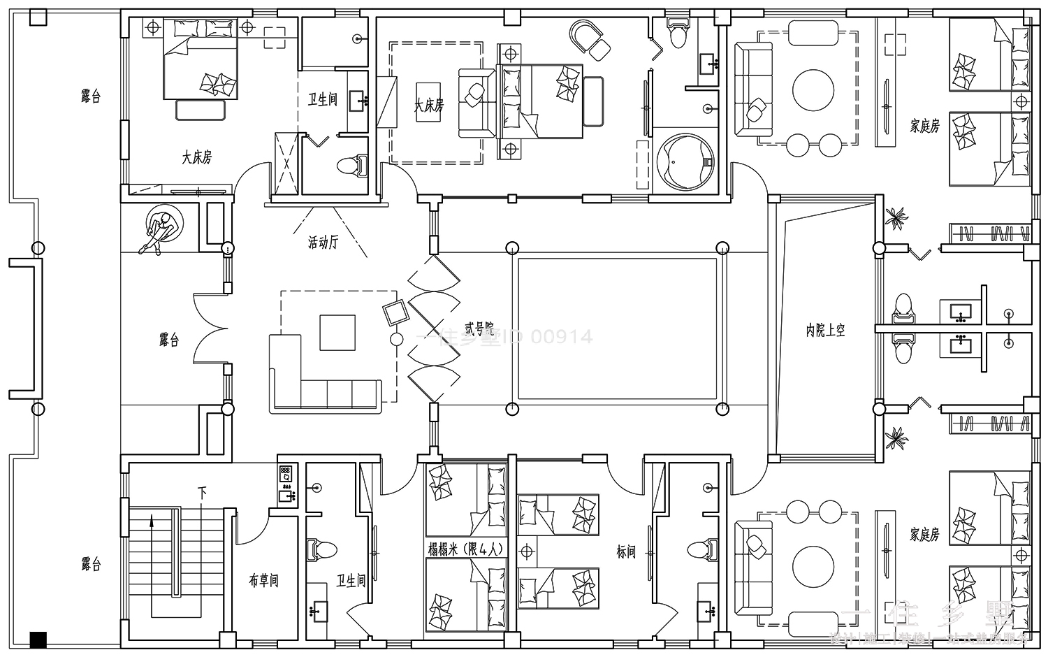
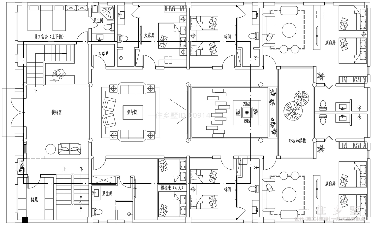
业主在项目前期提出了很多具体的设计要求和意见,从平面到立面都有很多自己的想法。设计师根据业主的需要和喜好,同时考虑项目周围情况,将项目形式确定为东西朝向的2层新中式风格建筑(地下1层),并充分用满宅基地的面积,满足商业运营需要。 民宿就犹如一杯“茶”。 茶不以外观美丑区分,合口感、润心境、宜健康即是好茶。 【城边栖居】则正符合这清雅的主题,栖居于长城脚下,山泉清水,秘瓷器皿,主次坐定,品茗交谈,随心、随想、随愿、随情这样一处佳境,细细品,耐人寻味。 建筑整体采用住宿与餐饮功能分区的设计方式,地下一层被设计为餐饮区。设备间与厨房放置于东侧空间,中部大面积空间为公共用餐区域,并未设计隔间和包房。同时西侧也集成了很多功能性空间,包括公卫、集水坑、储物和洗烘等空间。 一层布局中,东侧半部采用南北对称设计,布置了两个标间以及两个家庭房,同时纳入室内景观丰富入住体验。西侧空间由于接待区和楼梯等的设计需要,因此并未采用对称设计。中部迷你庭院的设计也使得建筑整体形成了风水上佳的四合院形式。 二层房间布置基本与一层保持一致,由于不需要接待区和员工宿舍等空间,因此设计师对于二层采用了退台设计,使得二层西侧可以创造出一片大面积的露台空间用于休闲。 设计师在一层采用青砖和浅色真石漆打造清爽的传统中式立面效果;屋檐、窗檐与挑檐、门楣均采用青瓦铺贴,古朴而又简洁。二层部分设计师大量采用木材质,使得视觉效果更加突出,同时也让二层的露台成为立面视觉焦点。梁柱之间的中式装饰构件丰富了细节处理,使得游客一眼就能感受到中式风格民宿带来的优雅与精致气息。 
△局部效果图 
△庭院效果图 西侧立面整体严格对称,门厅周围层次感丰富,窗框采用传统中式木窗,造型古朴而精致;门檐与二层木栏杆搭配形成鲜明对比,增强入户的仪式感。 二层的露天内院设计既丰富了二层的休闲活动功能,又大大提高了二层各个房间的室内采光。屋顶与二层空间大量的木材使用虽然增加了不少造价,但却换来了更为自然和古朴的体验,相信正式营业后一定能得到游客的一致好评。
|