一住乡墅

设计 | 施工 | 装修 | 一站式盖房服务
案例概况

案例概况

Architecture Project

广东佛山潘家现代别墅
分享到:

广东佛山潘家现代别墅

评论:0
风         格 热门精品
层         数 4层
结 构 形 式 框架结构
项 目 编 号 01857
特         征 带商铺
房 屋 面 积 446.0㎡
房 屋 尺 寸 面宽 8.0米 /进深 17.0米
施 工 报 价 72.0万
建 房 咨 询 15300078739
案例详情

△总平面示意图(左上角为北)

基地情况:

东:邻家住宅

西:邻家住宅

南:河道

北:村内道路

项目简介:

本项目底层主要作为商铺使用,上层空间用于业主兄弟两家及长辈居住使用。业主在项目前期希望室内流线清晰,并在平面布局上设置多个居住空间;在立面造型上,偏爱现代简约风格。设计师根据场地情况,及业主的需求和喜好,将项目形式确定为4层现代别墅。

平面布局

户型概况:

4层 / 7室 4厅 7卫 3厨 1储藏 6衣帽 2阳台 1露台 2商铺

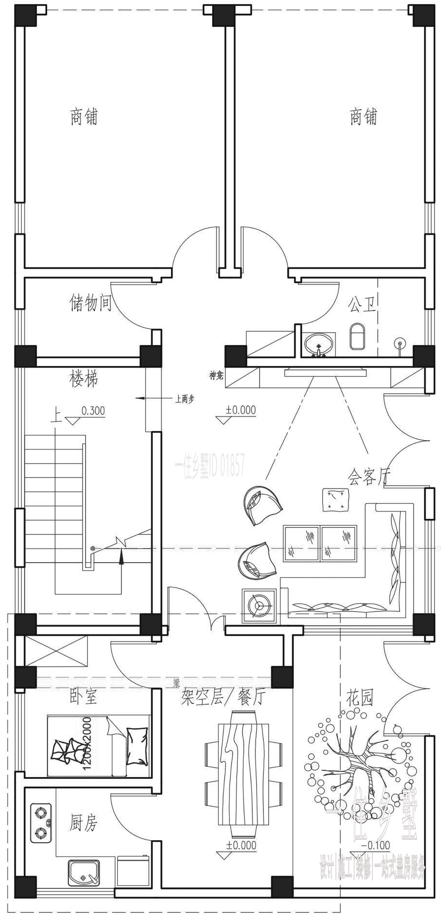
△一层平面图(左上角为北)

一层以3部分组成,西南侧为业主家共用区域,预留1间客卧和用餐空间;东南侧中部的入口,可直达会客厅区域,便于日常出行;东北侧设置了双商铺区域,后期可根据使用需求自行划分使用。

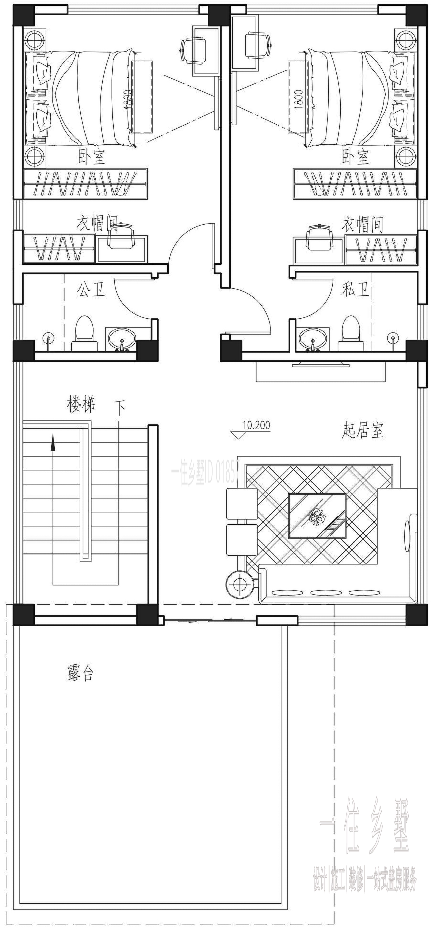
△二层平面图(左上角为北)

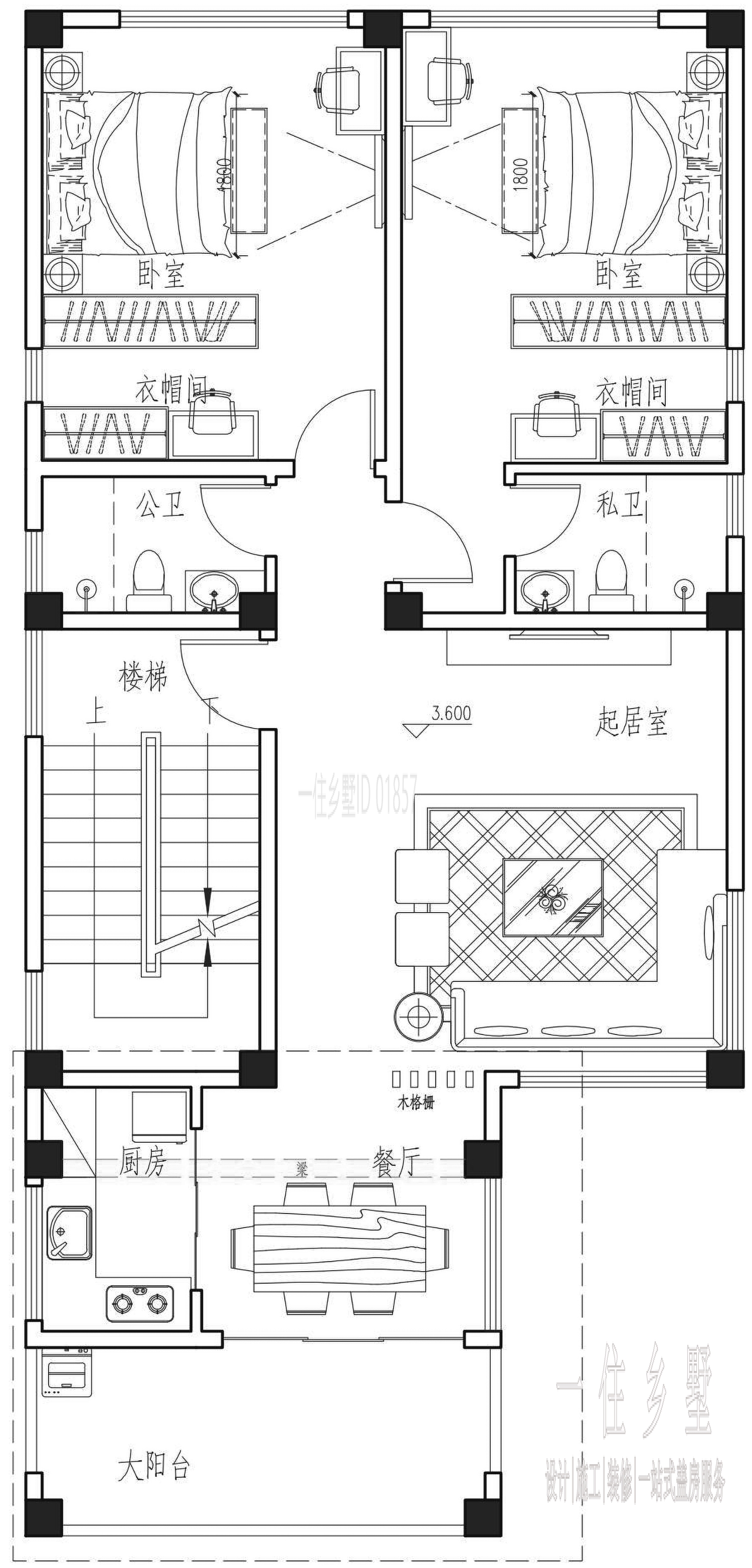
△三层平面图(左上角为北)

二、三层主要以居住休闲功能为主,共布置2间卧室,其中东侧的卧室套房,搭配衣帽间和独卫使用;西侧的阳台区域,满足居住者洗衣、晾晒等需求。

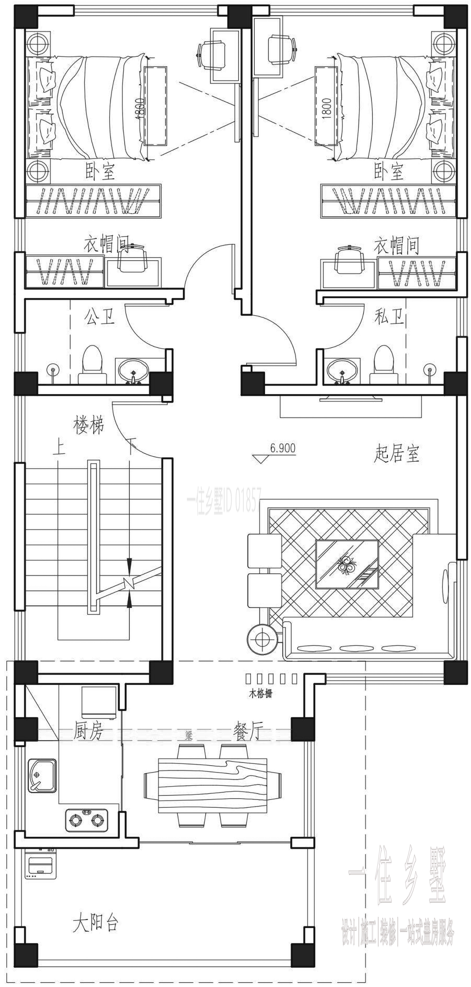
△四层平面图(左上角为北)

四层以居住休闲姑娘为主,共布置了2间卧室;西南侧预留了较大面积的室外空间,给业主提供了休闲、观景、待客的场所。

造型设计

△南侧效果图

△西侧效果图

建筑为现代风格,设计师通过深色装饰的设计增强空间感;在材质上以灰色真石漆为主,搭配木饰面,融入素混凝土元素,丰富了建筑的视觉体验。

△南侧效果图

△鸟瞰图

建筑整体体块错落有致、层层相叠,平屋顶的设计与各层露台和谐统一,营造出现代感十足的整体造型。

△东侧效果图

△人视图

顶层的室外露台区域采用玻璃围栏配合空间变化,形成十分通透的视觉感,内部可放置盆栽等绿植景观,再摆上休闲桌椅,增加建筑的趣味性。

△东南立面图

△西北立面图

△西南立面图

△东北立面图

一住乡墅专注于农村自建房别墅设计施工一站式盖房服务

北京一住乡墅公司主要做农村自建房别墅施工、别墅装修、别墅设计、民宿设计相关业务,自成立以来就不断开拓,不断创新,以专注的精神、专业的技术、优质的服务为客户打造高品质的农村居住环境,只为让业主在卓越中尽享舒适,并致力于缔造乡村别墅先锋品牌。


联系QQ:543757177
手机号码:17611239865
联系邮箱:543757177@qq.com
联系地址:北京市大兴区海鑫路8号院4号楼2层
微 信 扫 一 扫
登录
登录
其他账号登录:
我的资料
留言
回到顶部