一住乡墅

设计 | 施工 | 装修 | 一站式盖房服务
案例概况

案例概况

Architecture Project

江西上饶陈家现代别墅
分享到:

江西上饶陈家现代别墅

评论:0
风         格 现代
层         数 3层
结 构 形 式 框架结构
项 目 编 号 01394
特         征 客厅挑空
房 屋 面 积 910.0㎡
房 屋 尺 寸 面宽 26.5米 /进深 17.0米
施 工 报 价 159.9万
建 房 咨 询 15300078739
案例详情
微信图片_20200103180234.jpg

△总平面示意图


DJI_0207.JPG

△现场航拍


基地情况:

东:林地

西:林地

南:林地

北:林地


平面布局

户型概况:

3层 / 6室 2厅 8卫 1厨 1多功能厅 1储物间 1鞋帽间 4衣帽间 3平台 5阳台 3露台 5花池 1室内花园

1F_00.jpg

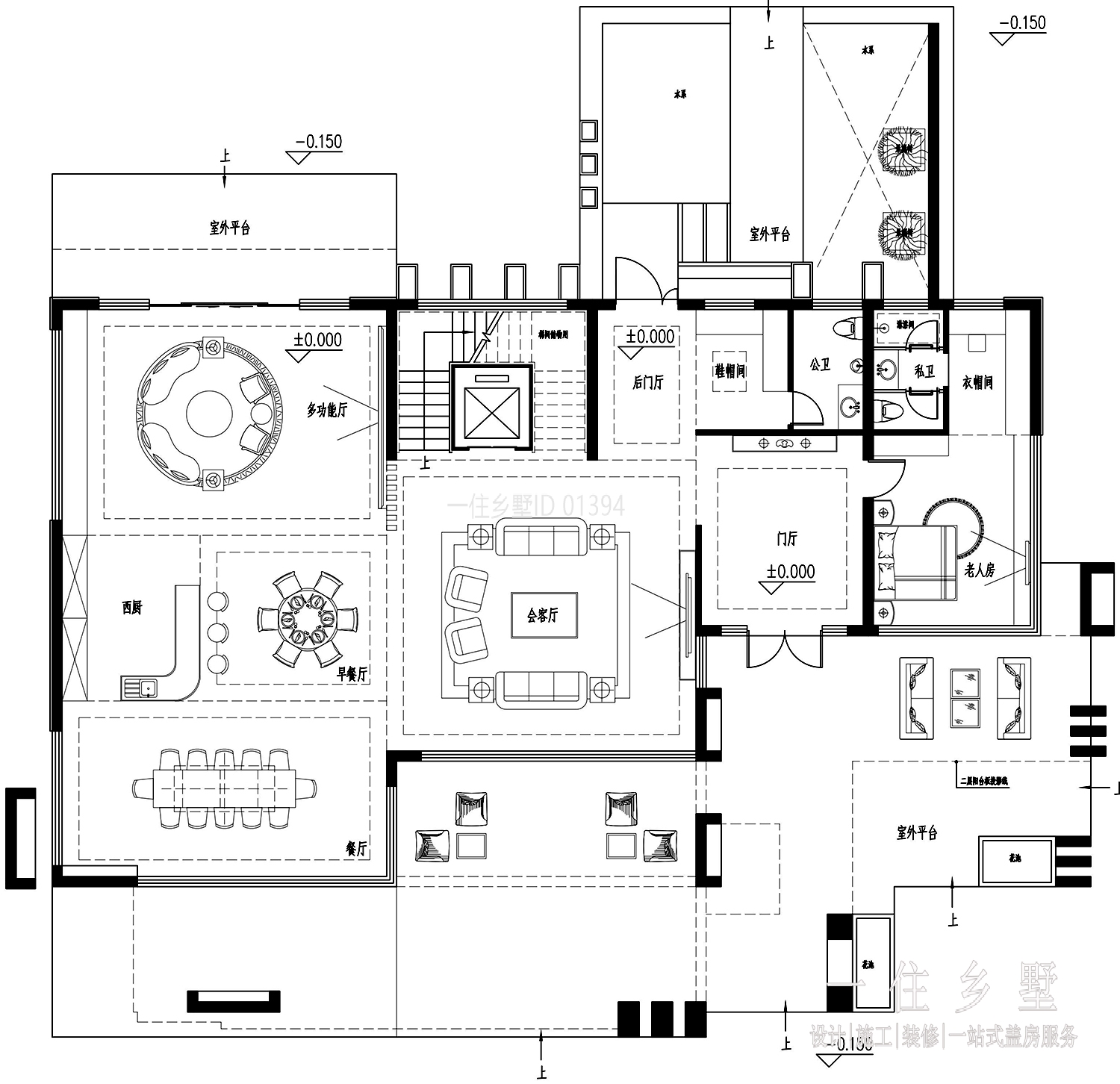
△一层平面图

建筑整体共有三层,一层以大开间布局,将整栋建筑分为三个区域。一层由南、北入户,其中南侧经门厅向北设置老人居住的套房,向西入会客厅与后门厅相连,便于到室外平台相呼应。西侧的西餐厅、早餐厅、餐厅和多功能厅空间宽阔,并向北直接对外,可作为业主家及亲朋好友的欢聚空间。

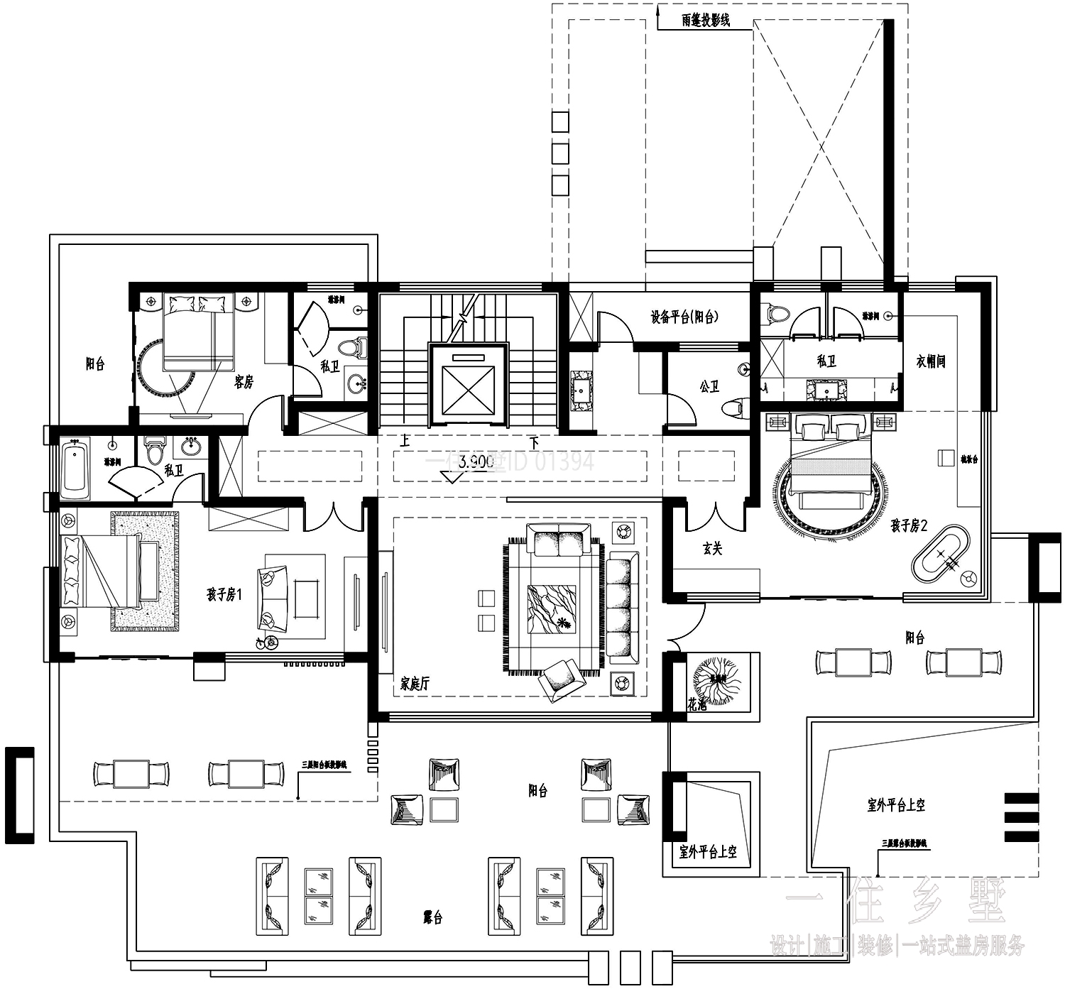
2F_00.jpg

△二层平面图

经电梯或楼梯进入二层空间,东北角和西南角均有个独立套房空间,作为孩子房使用,但功能有所改变。西北侧预留客房空间,中部家庭厅向外延伸出阳台和露台的空间。

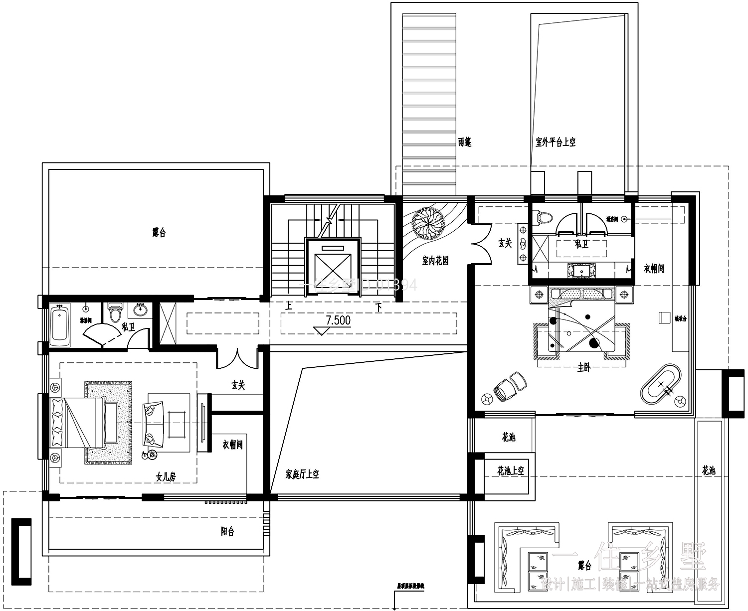
3F_00.jpg

△三层平面图

三层比二层的使用空间更加私密,东侧用作带独立卫生间、衣帽间、花池和露台的主卧室,整个建筑室内布局利用率高,中部室内花园与西侧女儿房和露台相连,既满足了私密生活的需要,又维系了相亲相爱的和睦关系。

造型设计

20191028易盖房江西上饶陈建平别墅-c02-rsy-ok.jpg

△南侧效果图

建筑整体采用现代风格设计,立体采用几何与现代设计手法来增强空间划分,描绘出鲜明的轮廓,使得整体呈现自由立面效果,利用黑白灰的三种颜色作为主基调,搭配大理石设计,流露出现代风的简洁意象,干净利落。入口处及二层均配以小块绿化区域,为建筑增添景色的同时也更令建筑更为环保舒适。

20191028易盖房江西上饶陈建平别墅-c04-cmk (1).jpg

△人视图

综合业主的喜好,立面除了大面积的白色墙面显出明亮的主色调,以小部分的灰色墙面区分出建筑的主次,黑色线条和木色部分点缀,从交谈中可知业主及其家人的享受生活空间的需求,因此在布局上增设多处雨棚设计,又提升了建筑整体造型的灵动性。

20191028易盖房江西上饶陈建平别墅-c03-cmk.jpg

△东南侧效果图

建筑整体配色淡雅,玻璃幕墙、石材与原木的搭配既充满现代感,又非常自然温暖,充满高级感,整个立面造型显得干净整洁,虚实的变化,流畅的线条,充满层次感。

20191028易盖房江西上饶陈建平别墅-c01-rsy.jpg

△鸟瞰图

屋面采用平屋顶的设计方式,二、三层中部设置通告的起居室,提升室内的采光效果和通透感,与三层的露台空间形成对比。搭配大面积的玻璃围栏和绿植景观,使建筑拥有良好的景观视野,同时增加灵动性。

2.jpg

△东立面图

4.jpg

△西立面图

1.jpg

△南立面图

3.jpg

△北立面图

一住乡墅专注于农村自建房别墅设计施工一站式盖房服务

北京一住乡墅公司主要做农村自建房别墅施工、别墅装修、别墅设计、民宿设计相关业务,自成立以来就不断开拓,不断创新,以专注的精神、专业的技术、优质的服务为客户打造高品质的农村居住环境,只为让业主在卓越中尽享舒适,并致力于缔造乡村别墅先锋品牌。


联系QQ:543757177
手机号码:17611239865
联系邮箱:543757177@qq.com
联系地址:北京市大兴区海鑫路8号院4号楼2层
微 信 扫 一 扫
登录
登录
其他账号登录:
我的资料
留言
回到顶部